THÔNG TIN Biệt Thự

Số lượng tầng: 1 trệt + 3 lầu + mái

Diện tích xây dựng: 244.7 m2

Số phòng ngủ: 3

Nhà vệ sinh: 4

Phòng sinh hoạt chung: 1

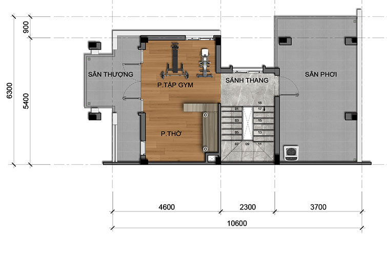
Phòng đọc sách: 1

Phòng thờ: 1

Sân phơi: 1